奶油法式风以其温柔光影与细腻肌理,将寻常户型点化为诗意居所。空间中流淌着疗愈与宁静,让幸福成为可触摸的日常。若你钟情于奶油法式风的浪漫情调,轩怡家装这套案例,恰是广佛装修业主的理想参照。
案例信息
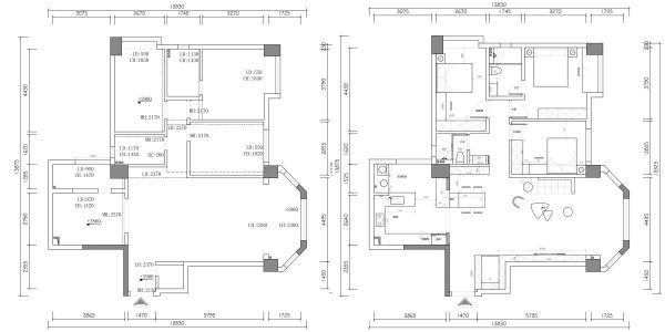
地点:广州 小区:锦东花园 户型:135m²3房2厅 风格:法式奶油风

设计亮点
①玄关处以柜代墙,围合出小储藏室,为全屋收纳减压
②小阳台合并进厨房,空间更通透,也为功能区打造留出更多余地
③卫生间改为洗手台外置,视觉上缩短走廊,也注入更多趣味
一客厅

常规的竖厅结构在光影延伸中得到了新式表达,有光有景,景色宜人。地面通铺,顶面流畅,为线条和块体留出足够余地,空间感得到立体呈现。

皮革与木质,工艺与自然,多向度对比形成新的奶油法式风叙事主轴,复古元素点缀其中,将奶油法式温柔氛围融入,成就家的独特气质。

绿植的曲线在其中点缀,柔化中和墙面硬朗线条,带来一种折衷的美感。似隐似现的吉他、推车象征着生活另一面,呼应着奶油法式风对艺术的追求。
二餐厅

餐厨之间的墙体被置换为半窗,两面光线得到沟通,位于空间C位的餐厅也褪去昏暗外衣。三餐四季,令人惬意。

餐边柜给予奶油法式风更多新式表达,长虹玻璃、岩板、灯带种种元素凝练于设计细节,呈现视觉与功能上的突破。
三厨房

隔断被拆除,光线无碍进入空间,厨房变得开阔而明亮。硬朗的结构,人性化的动线,交织其中,为功能区打造交出答卷。
四主卧

大地色缓缓沁入空间,带来主卧氛围上的松弛舒展,情绪和时间自由流动。
床头与飘窗柜连成一体,将散落的功能区串成整体,流畅又带有线条的筋骨。蓬松柔软的床品带来包裹感,令人拥有整晚安眠。
五次卧

相对主卧的手法,次卧稍重一些。黑色呈现复古摩登气质,墙面留白连缀简繁,令空间成为别具一格的身心驻地。
六儿童房

儿童房在奶油法式风表达上注入甜美,贝壳床头,精巧推车……内化的审美梳理空间秩序,强化微观尺度质感。桌柜一体化定制,学习或是收纳皆能得到妥帖安排。
七卫生间

干湿分离已是卫生间标配,设计师在细节上做出优化,淋浴房采用三联动门,让空气尽可能的自然流通。
业主评价:“开始只是想要一个奶油法式风的家,但轩怡家装给了我们远超预期的惊喜。尤其是玄关的储物间和厨房合并阳台的设计,收纳压力真的小了很多。现在入住后,邻居来参观都说我们家看起来比实际面积大不少,设计得非常巧妙。整个装修过程沟通也很顺畅,很感谢设计施工团队的付出!”
(正文已结束)
推荐阅读:
免责声明及提醒:此文内容为本网所转载企业宣传资讯,该相关信息仅为宣传及传递更多信息之目的,不代表本网站观点,文章真实性请浏览者慎重核实!任何投资加盟均有风险,提醒广大民众投资需谨慎!